Sân bay Phú Quốc đóng vai trò quan trọng trong việc phát triển du lịch và giao thương của vùng biển đảo xinh đẹp này. Với cơ sở hạ tầng hiện đại và mạng lưới đường bay rộng khắp, sân bay tạo điều kiện thuận lợi cho hàng triệu du khách trong và ngoài nước đến khám phá hòn đảo thiên đường này mỗi năm.

Tổng quan về sân bay Phú Quốc
Sân bay Phú Quốc tọa lạc tại xã Dương Tơ, huyện Phú Quốc, tỉnh Kiên Giang, cách trung tâm thị trấn Dương Đông khoảng 5 km về phía nam. Với tổng diện tích quy hoạch rộng tới 904,55 ha, sân bay đóng vai trò quan trọng trong việc phát triển kinh tế, du lịch và giao thương của huyện đảo lớn nhất Việt Nam.
- Mã sân bay: PQC
- Mã quốc gia: +84
- Địa chỉ: Xã Dương Tơ, huyện Phú Quốc, tỉnh Kiên Giang
- Số nhà ga: 1 nhà ga hành khách (gồm khu vực quốc nội và quốc tế trong cùng một nhà ga)
- Múi giờ: GMT +7
- Đơn vị quản lý: Tổng công ty Cảng hàng không Việt Nam (ACV)
Đây là sân bay hiện đại đạt chuẩn cấp 4E ICAO, sẵn sàng phục vụ khoảng 2,65 triệu lượt khách mỗi năm trong giai đoạn đầu và dự kiến nâng công suất lên 7 triệu lượt khách vào năm 2030.

Lịch sử hình thành và phát triển sân bay Phú Quốc
Khởi đầu từ một sân bay nhỏ được xây dựng trong thời kỳ Pháp thuộc, sân bay ban đầu chỉ phục vụ các chuyến bay nhỏ với máy bay DC3 có sức chứa 32 ghế. Sau năm 1954, sân bay tiếp tục được sử dụng trong thời kỳ Mỹ chiếm đóng miền Nam.
Năm 1983, đường băng được nâng cấp từ 996m lên 1.496m, cho phép đón các máy bay cỡ trung. Giai đoạn 1994-1995 chứng kiến việc xây dựng nhà ga và các công trình phụ trợ.
Năm 2003, một dự án nâng cấp trị giá 1.200 tỷ đồng nhằm kéo dài đường băng lên 3.000m và nâng công suất lên 1-2 triệu hành khách mỗi năm được lập nhưng không được triển khai. Thay vào đó, dự án mới với vốn đầu tư lên tới 16.200 tỷ đồng đã được thực hiện để xây dựng sân bay quốc tế hiện đại, mở ra bước ngoặt phát triển cho du lịch Phú Quốc.
Cơ sở hạ tầng hiện đại, tiện nghi tại sân bay Phú Quốc
Sân bay Phú Quốc được trang bị hệ thống cơ sở hạ tầng hiện đại và tiện nghi hàng đầu, đáp ứng nhu cầu khai thác hiệu quả, an toàn và mang đến trải nghiệm tối ưu cho hành khách trong và ngoài nước.
1. Hệ thống đường băng và sân đỗ
Sân bay Phú Quốc sở hữu đường băng chính dài 3.000 mét, rộng 45 mét, với hai bên lề đường mỗi bên rộng 15 mét, đảm bảo khả năng vận hành an toàn và hiệu quả cho các loại máy bay cỡ lớn như Boeing 747-400 và Airbus A321. Hệ thống đường lăn song song dài 3.000 mét, rộng 23 mét cùng các đường lăn tắt được thiết kế hợp lý nhằm tối ưu hóa luồng tàu bay, giảm thiểu thời gian chờ đợi.
Khu vực sân đỗ có diện tích 39.400 m² với 8 vị trí đỗ máy bay, đáp ứng tốt nhu cầu khai thác vào giờ cao điểm, đặc biệt dành cho các loại máy bay phổ biến trong khai thác nội địa và quốc tế như A320, A321. Bề mặt sân đỗ sử dụng bê tông nhựa chịu tải cao, đảm bảo bền vững trước tác động của thời tiết và tần suất bay lớn.
Hệ thống đèn tín hiệu và thiết bị hỗ trợ hạ cánh chính xác (ILS) cùng với các công trình dẫn đường hiện đại được trang bị đầy đủ nhằm đảm bảo an toàn tuyệt đối cho các chuyến bay, kể cả trong điều kiện thời tiết phức tạp.
2. Quy mô và tiêu chuẩn khai thác
Sân bay Phú Quốc được xây dựng và vận hành theo tiêu chuẩn cấp 4E của Tổ chức Hàng không Dân dụng Quốc tế (ICAO). Theo quy hoạch phát triển đến năm 2030, sân bay có khả năng tiếp nhận đồng thời 20 máy bay trong giờ cao điểm, với công suất phục vụ lên tới 7 triệu lượt khách mỗi năm và xử lý 27.600 tấn hàng hóa. Trong giờ cao điểm, sân bay có thể đón tiếp tối đa 3.500 hành khách mỗi giờ.
Hệ thống đài kiểm soát không lưu, thiết bị chỉ huy bay và các hạng mục kỹ thuật khác được đầu tư đồng bộ, hiện đại, đáp ứng các tiêu chuẩn khắt khe về an toàn và hiệu quả khai thác.
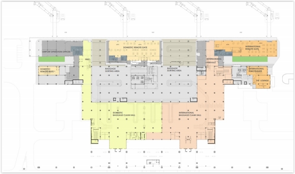
3. Nhà ga hành khách
Nhà ga hành khách của sân bay Phú Quốc có tổng diện tích 24.325 m², thiết kế gồm 2 tầng riêng biệt, phục vụ song song hành khách đi và đến, với phân chia khu vực nội địa và quốc tế rõ ràng nhằm tạo sự thuận tiện tối đa cho hành khách.
Tầng trệt (13.026 m²)
- Phục vụ hành khách đến, với hai khu vực riêng biệt cho quốc tế (6.097 m²) và nội địa (4.625 m²). Khu vực sảnh đến có thiết kế mở, kết nối với sân vườn cây xanh tạo cảm giác thư giãn, thoải mái.
- Các tiện ích như kiểm tra nhập cảnh, băng chuyền hành lý, khu vực hải quan, phòng nhận hành lý thất lạc, dịch vụ đổi tiền, và các dịch vụ hỗ trợ hành khách được bố trí khoa học, thuận tiện.

Tầng 1 (11.150 m²)
- Dành cho hành khách đi, chia làm khu vực quốc tế (5.433 m²) và nội địa (4.716 m²). Tại đây có quầy làm thủ tục hàng không, khu vực kiểm tra an ninh, phòng chờ rộng rãi với tầm nhìn toàn cảnh sân bay, cùng các dịch vụ ăn uống, mua sắm và cửa hàng miễn thuế.
- Phòng chờ VIP và phòng chờ thương gia được bố trí thuận tiện với trang thiết bị hiện đại, đáp ứng nhu cầu hành khách cao cấp.
Nhà ga được thiết kế đảm bảo luồng di chuyển hành khách thông suốt từ khi làm thủ tục đến khi lên máy bay, giúp tối ưu hóa thời gian và trải nghiệm của hành khách.
4. Dịch vụ và tiện ích nổi bật
Sân bay Phú Quốc trang bị hệ thống tiện ích hiện đại nhằm mang đến trải nghiệm tốt nhất cho hành khách:
- Phòng chờ: Có hai phòng chờ VIP với phong cách và tiện nghi riêng biệt. The SENS Leisure Lounge dành cho khu vực quốc tế với thiết kế sang trọng, đẳng cấp resort; phòng chờ Hoa Sim tại khu vực nội địa nổi bật với kiến trúc hiện đại kết hợp nét đặc trưng văn hóa địa phương.
- Mua sắm và ẩm thực: Hành khách có thể tận hưởng hệ thống cửa hàng miễn thuế, quầy đặc sản địa phương, cửa hàng lưu niệm cùng chuỗi nhà hàng và quán cà phê đa dạng như Starbucks, Highlands Coffee và Burger King, đáp ứng mọi khẩu vị và nhu cầu.
- Dịch vụ hỗ trợ hành khách: Các tiện ích như quầy hỗ trợ thông tin, đổi tiền, máy ATM, dịch vụ thuê xe, phòng hút thuốc riêng biệt cùng hệ thống an ninh, kiểm tra soi chiếu nhanh chóng, đảm bảo hành trình thuận tiện, an toàn.
- Wi-Fi miễn phí: Toàn bộ khu vực sân bay được phủ sóng Wi-Fi tốc độ cao, tạo điều kiện kết nối liên tục cho hành khách trong suốt thời gian lưu lại sân bay.
Các chuyến bay khai thác tại sân bay Phú Quốc
Các chuyến bay khai thác tại sân bay Phú Quốc đa dạng với nhiều hãng hàng không uy tín, mang đến lựa chọn thuận tiện và linh hoạt cho hành khách di chuyển đến và đi từ đảo ngọc.
1. Các chặng bay nội địa từ sân bay Phú Quốc
Sân bay Phú Quốc hiện được khai thác bởi các hãng hàng không lớn như hãng hàng không Vietjet Air, Vietnam Airlines, Bamboo Airways và Pacific Airlines với nhiều đường bay nội địa kết nối Phú Quốc với các thành phố lớn trong cả nước, bao gồm:
- Phú Quốc ⇔ Hà Nội
- Phú Quốc ⇔ TP. Hồ Chí Minh
- Phú Quốc ⇔ Đà Nẵng
- Phú Quốc ⇔ Nha Trang
- Phú Quốc ⇔ Cần Thơ
- Phú Quốc ⇔ Huế
- Phú Quốc ⇔ Buôn Ma Thuột
Ngược lại, các chuyến bay nội địa đến sân bay Phú Quốc cũng khai thác từ các điểm trên với tần suất đa dạng, tạo điều kiện thuận lợi cho hành khách di chuyển giữa đảo ngọc và các vùng kinh tế trọng điểm trên cả nước.
| Hãng hàng không | Mã chuyến bay | Sân bay đến | Giờ cất cánh | Thời gian bay | Giá vé (VND) |
| Vietjet Air | VJ1458 | HAN | 14:35 | 2 giờ 5 phút | 2,616,600 |
| Pacific Airlines | VN6400 | HAN | 15:20 | 2 giờ | 3,228,000 |
| Vietnam Airlines | VN1822 | HAN | 09:45 | 5 giờ 20 phút | 3,515,000 |
| Vietjet Air | VJ344 | SGN | 13:10 | 1 giờ | 1,644,600 |
| Vietravel Airlines | VU302 | SGN | 19:10 | 1 giờ 5 phút | 1,210,440 |
| Bamboo Airways | QH1524 | SGN | 18:10 | 1 giờ 15 phút | 1,256,000 |
| Vietnam Airlines | VN1826 | SGN | 14:35 | 1 giờ 10 phút | 2,437,000 |
| Vietnam Airlines | VN1822 | DAD | 09:45 | 4 giờ 10 phút | 2,856,000 |
| Vietnam Air Service | VN8074 | DAD | 13:05 | 3 giờ 50 phút | 3,504,000 |
| Vietnam Airlines | VN7826 | DAD | 14:40 | 5 giờ 40 phút | 3,601,000 |
| Vietnam Airlines | VN1236 | CXR | 10:05 | 5 giờ 20 phút | 7,414,000 |
| Pacific Airlines | VN6400 | CXR | 15:20 | 6 giờ 50 phút | 6,042,000 |
| Vietnam Air Service | VN8074 | VCA | 13:05 | 1 giờ 5 phút | 1,608,000 |
| Vietnam Airlines | VN1236 | VCA | 10:05 | 8 giờ 45 phút | 6,604,000 |
| Vietnam Airlines | VN1826 | HUI | 14:35 | 3 giờ 55 phút | 5,249,000 |
| Pacific Airlines | VN6400 | HUI | 15:20 | 5 giờ 40 phút | 7,135,000 |
| Vietnam Airlines | VN7826 | BMV | 14:40 | 4 giờ 30 phút | 3,493,000 |
| Vietnam Airlines | VN1826 | BMV | 14:35 | 4 giờ 35 phút | 4,439,000 |
2. Các chặng bay quốc tế từ sân bay Phú Quốc
Sân bay Phú Quốc hiện đang được khai thác bởi các hãng hàng không quốc tế uy tín như AirAsia, Scoot, cùng nhiều hãng thuê chuyến, mở rộng mạng bay đến các điểm đến quốc tế quan trọng tại châu Á và khu vực lân cận, bao gồm:
- Phú Quốc ⇔ Đài Loan
- Phú Quốc ⇔ Hàn Quốc
- Phú Quốc ⇔ Mông Cổ
Các chuyến bay quốc tế từ Phú Quốc được khai thác với tần suất ngày càng tăng, góp phần thúc đẩy giao thương và du lịch giữa đảo ngọc và các thị trường quốc tế trọng điểm.
| Hãng hàng không | Mã chuyến bay | Sân bay đến | Giờ cất cánh | Thời gian bay | Giá vé (VND) |
| Vietjet Air | VJ448 | TPE | 07:45 | 7 giờ 10 phút | 19,743,000 |
| G2 Switch Works | A12448 | TPE | 07:45 | 9 giờ 15 phút | 10,371,000 |
| Flexflights Aps | W24844 | TPE | 08:20 | 3 giờ 40 phút | 7,085,000 |
| Cathay Pacific Airways | CX5599 | ICN | 10:40 | 8 giờ 30 phút | 19,774,000 |
| Cathay Pacific Airways | CX5599 | TPE | 10:40 | 6 giờ | 14,362,000 |
| Vietnam Airlines | VN1236 | TPE | 10:05 | 10 giờ 5 phút | 18,006,000 |
| Greater Bay Airlines | HB521 | TPE | 11:30 | 21 giờ 20 phút | 10,373,000 |
| Thai Vietjet Air | VZ983 | TPE | 16:45 | 13 giờ | 6,993,000 |
| Vietjet Air | VJ978 | ICN | 17:55 | 5 giờ 15 phút | 5,475,000 |
| G2 Switch Works | A12978 | ICN | 17:55 | 5 giờ 15 phút | 6,372,000 |
| China Eastern Airlines | MU862 | ICN | 21:00 | 14 giờ 15 phút | 14,545,000 |
| Jin Air | LJ92 | RST | 21:55 | 37 giờ 34 phút | 50,231,000 |
Đặt vé máy bay cùng Alltours – Đối tác tin cậy cho hành trình của bạn
Alltours tự hào là đơn vị cung cấp vé máy bay chính hãng, hợp tác với đa dạng hãng hàng không khai thác tại sân bay Phú Quốc. Với nền tảng đặt vé trực tuyến hiện đại, thân thiện và tiện lợi, khách hàng dễ dàng tra cứu, so sánh và lựa chọn các chuyến bay phù hợp nhất về thời gian, giá cả và dịch vụ đi kèm.
Bên cạnh đó, đội ngũ tư vấn viên chuyên nghiệp, tận tâm luôn sẵn sàng hỗ trợ đặt vé, tư vấn hành trình và giải đáp mọi thắc mắc 24/7, đảm bảo quy trình mua vé diễn ra nhanh chóng, thuận tiện và an toàn. Đặt vé máy bay đi Phú Quốc tại Alltours, khách hàng còn được hưởng chính sách đổi trả vé linh hoạt, minh bạch và các dịch vụ hậu mãi chu đáo.
Liên hệ đặt vé máy bay ngay:
- Tổng đài bán vé máy bay toàn quốc: 1900 1812
- Zalo/Di động hỗ trợ nhanh: 0333 320 320

Alltours không chỉ là cầu nối đặt vé mà còn đồng hành cùng bạn trên từng bước đi, mang đến trải nghiệm bay trọn vẹn và thoải mái nhất.
Phương tiện di chuyển từ sân bay Phú Quốc về trung tâm
Phương tiện di chuyển từ sân bay Phú Quốc về trung tâm rất đa dạng, đáp ứng nhu cầu của mọi hành khách với các lựa chọn tiện lợi, nhanh chóng
1. Xe buýt
Sân bay Phú Quốc có tuyến xe buýt công cộng số 11 kết nối sân bay với các điểm chính như Dương Đông và An Thới, rất thuận tiện và tiết kiệm.
Ngoài ra, hệ thống xe buýt VinBus miễn phí phục vụ các tuyến đến Vinpearl Phú Quốc và Grand World với các tuyến phổ biến như tuyến 17 (Sân bay – Grand World) và tuyến 19 (InterContinental – Sân bay – Grand World). Bạn có thể tra cứu lịch trình chi tiết qua ứng dụng VinBus hoặc bản đồ tuyến xe.
2. Taxi
Taxi đón khách ngay cửa ra sân bay, giá từ 180.000 đến 220.000 VNĐ/lượt về trung tâm phường Dương Đông hoặc các khu nghỉ dưỡng.
Các hãng taxi phổ biến gồm Mai Linh, Vinasun, Phú Quốc Taxi (Nam Thắng), hoặc đặt xe qua GrabCar. Đặc biệt, taxi điện Xanh SM – hãng taxi thuần điện đầu tiên ở Việt Nam – mang đến trải nghiệm di chuyển êm ái, thân thiện môi trường và dịch vụ 5 sao.
3. Dịch vụ xe đưa đón sân bay
Nhiều khách sạn và khu nghỉ dưỡng có dịch vụ xe đưa đón sân bay riêng, như Vinpearl Phú Quốc, giúp bạn di chuyển an toàn, tiện lợi và thoải mái ngay từ khi đến đảo.
4. Thuê xe máy
Nếu bạn muốn tự do khám phá đảo, có thể thuê xe máy với giá từ 100.000 đến 180.000 VNĐ/ngày. Nhiều cơ sở cho thuê hỗ trợ giao xe tận sân bay. Đây là lựa chọn phù hợp khi bạn không mang nhiều hành lý hoặc đi theo nhóm nhỏ.
5. Xe ôm
Xe ôm là lựa chọn nhanh chóng, giá rẻ khoảng 60.000 – 70.000 VNĐ từ sân bay về trung tâm Dương Đông. Bạn có thể dễ dàng bắt xe tại bãi giữ xe ngoài trời bên phải cổng sân bay. Nên hỏi giá trước khi đi để tránh tranh cãi.
Khám phá các địa điểm du lịch gần sân bay Phú Quốc
Sân bay quốc tế Phú Quốc không chỉ là cửa ngõ kết nối du khách với đảo ngọc mà còn là điểm xuất phát thuận tiện để khám phá nhiều điểm đến nổi bật xung quanh. Từ bãi biển hoang sơ, khu vui chơi giải trí hiện đại đến các làng chài truyền thống, những địa điểm gần sân bay hứa hẹn mang đến trải nghiệm đa dạng và đáng nhớ cho mọi du khách.
1. Bãi Dài
Chỉ cách sân bay khoảng 7km, Bãi Dài được mệnh danh là một trong những bãi biển đẹp nhất Phú Quốc với bờ cát trắng mịn màng trải dài và làn nước biển trong xanh như ngọc bích. Đây là điểm đến lý tưởng để thư giãn tuyệt đối, thả mình trong làn nước mát, hay tận hưởng các hoạt động thể thao dưới nước sôi động như lướt ván, dù lượn.
2. Làng chài Hàm Ninh
Cách sân bay khoảng 20 phút lái xe, làng chài Hàm Ninh vẫn giữ nguyên vẻ đẹp hoang sơ và nét văn hóa truyền thống với những ngôi nhà gỗ nằm sát biển cùng những chiếc thuyền đánh cá mộc mạc. Du khách đến đây không chỉ được thưởng thức hải sản tươi ngon ngay tại chỗ mà còn có cơ hội tìm hiểu đời sống mộc mạc, giản dị của người dân chài trên đảo.
3. VinWonders Phú Quốc
Cách sân bay khoảng 15km, VinWonders là công viên giải trí quy mô lớn nhất Phú Quốc, mang đến vô vàn trải nghiệm hấp dẫn từ những trò chơi cảm giác mạnh, khu vực biểu diễn nghệ thuật sôi động cho đến vườn thú hoang dã đa dạng sinh vật. Đây chắc chắn là điểm đến không thể bỏ qua cho cả gia đình và nhóm bạn trẻ yêu thích khám phá và giải trí.

Sân bay Phú Quốc là hạ tầng giao thông hàng không hiện đại, đồng bộ, góp phần quan trọng thúc đẩy phát triển kinh tế – du lịch và giao thương khu vực đảo ngọc Phú Quốc. Với hệ thống cơ sở vật chất tân tiến, dịch vụ tiện nghi và mạng lưới đường bay nội địa, quốc tế đa dạng, đây chính là lựa chọn tối ưu cho hành trình khám phá vùng biển đảo tuyệt đẹp này.
Đặt vé máy bay đi Phú Quốc ngay hôm nay cùng Alltours để trải nghiệm hành trình an toàn, tiện lợi và tiết kiệm!